NWS TRUSS
미성이앤씨 무용접트러스 견적 진행 과정을 소개합니다
1
시공팀&공무
설계 및 실측
설계된 구획지역을 실측하여 도면과 이상이 없는지 확인한다.
원본도면 접수

접수된 원본도면을 접수하여 시공영역을 확인 후 컴퓨터 및 문서를 통한 1차 점검합니다
현장방문

현장을 방문하여 벽면의 상태, 브라켓의 길이, 앙카 시공방법 등 상호 협의를 통한 세밀한 2차 점검합니다
실 측

시공팀은 상호 협의된 내용을 반영한 마감선, 마감방법, 상세디테일에 준하여 실측장비를 통하여 실측을 진행합니다
2
시공팀&공무
발주도면 작성
설계된 구획지역을 실측하여 도면과 이상이 없는지 확인한다.
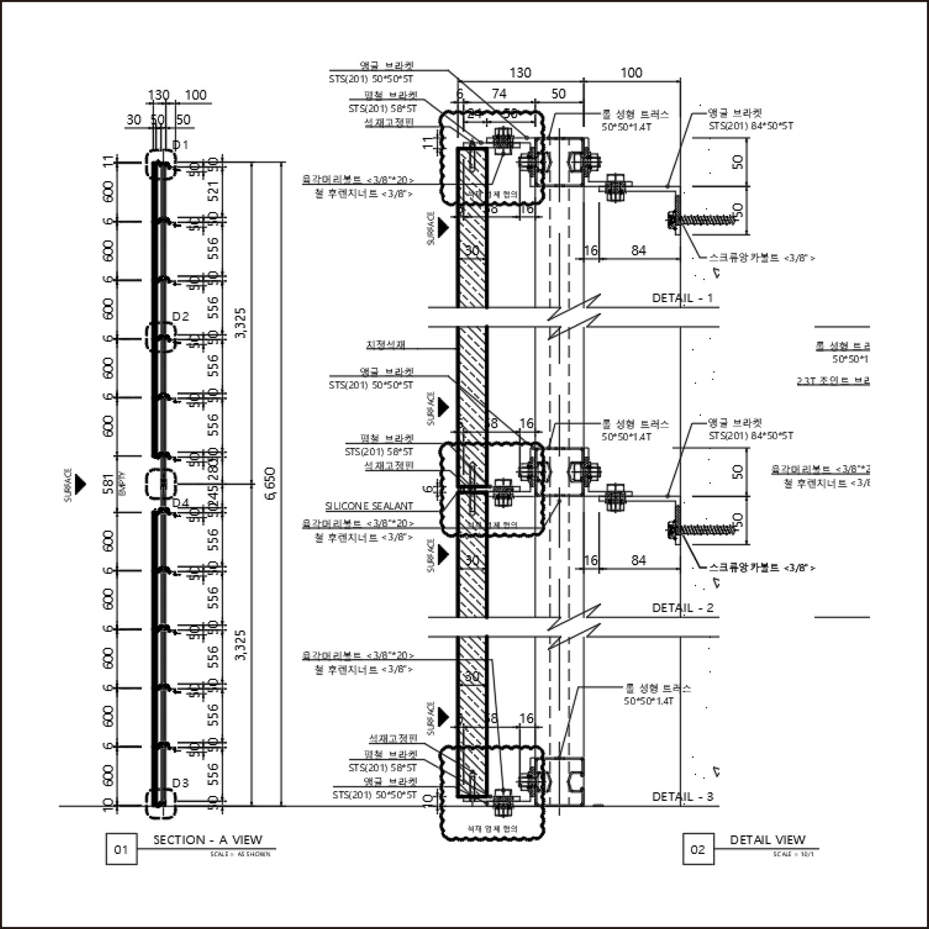
샵드로잉 작성

실측된 도면을 기준하여 배치도와 상세도 작성한다 작성된 도안은 도급업체 공무에게 제출하여 승인을 얻습니다
발주도면 작성

배치도를 기준으로 제작 및 운반이 용이한 규격으로 포스트 / 유니트 / 횡주관 타입별 발주 도면을 작성합니다
물량 산출

작성된 발주 도면에 준하여 물량 산출을 진행하고, 품번 (제품 코드, 위치 코드) 를 부여합니다
3
공장
공장 제작
원자재 및 부자재 확보, 유니트 / 포스트 / 횡주관 분류하여 볼트 체결
자재 준비

주문서에 따라 원자재 , 부자재 재고 수량을 파악하여 공장에 자재를 준비합니다
절단 및 가공

준비된 NWS TRUSS 를 설계 도면에 준하여 절단 및 프레스 가공합니다
조립

절단과 가공된 NWS TRUSS 와
부자재를 1차 SUB ASS’Y하여 조립하고 유니트형 판넬은 JIG를 활용하여 조립합니다
4
공장 & 시공팀
운송 및 하적
안전하게 하적 될 수 있도록 적재, 현장 내 적재 공간 확보합니다
적재

코드 라벨을 부착 후 위치 별로 분류하여 팔레트 포장합니다
운반

차량에 최적 중량이 되도록 하고 출고 자재 명세(송장)을 통해 상호 간 수량 확인 체크합니다
하적

하적된 제작품은 안전한 위치에 보관합니다
5
시공팀 & 공무
무용접 시공
장비를 활용하여 양중, 포스트 > 유니트 > 횡주관 순으로 체결시공
양중

장비사용 일정 및 인원을 체크 후 안전 사항을 준수하여 양중합니다
셋트 및 유니트 시공

배치도에 따라 설치되는 위치에 먹선을 통해 기준점 정립한다 앙카 작업 후 브라켓을 통해 포스트와 유니트를 시공합니다
횡주관 설치

설치된 유니트 사이에 횡주관을 연결하여 설치합니다 횡주관의 수평을 조정하여 마감합니다
